Не упусти свой шанс! Последние акции от застройщиков  ▼

Продается 2-комнатная квартира, 60 лет Октября просп., 8

4 100 000 Р

Щелково г. (Щелково гор. округ)

60 лет Октября просп.8

Дата публикации: 24 января 2026

Дата обновления: 20 марта 2026

Телефон: 
Показать телефон

+7 (499) 286-73-46

Агентство:  МИЭЛЬ

Этаж: 4 / 5

Общая: 42,2 м2

Жилая: 28 м2

Кухня: 6 м2

Комнаты: не указано

Балкон/лоджия: балкон

Лифт: не указано

Окна: окна на улицу

Санузел: раздельный

Мусоропровод: не указано

Состояние квартиры: требуется ремонт

Тип дома: панельный

Год постройки: 1971

Территория: не указано

Парковка: не указано

Статус сделки: продажа

Сделка: прямая продажа

Собственность: не указано

Основание права собственности: не указано

Описание

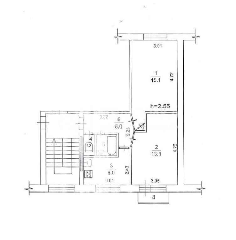
Код объекта: 2003551.Продаётся двухкомнатная квартира в Щёлково по адресу: проспект 60 лет Октября, 8. Квартира расположена на четвёртом этаже пятиэтажного панельного дома 1971 года постройки.Общая площадь 42,2 кв. м, жилая 28,2 кв. м, площадь кухни 6 кв. м.Окна выходят на улицу, комнаты изолированы.В квартире один раздельный санузел, есть балкон.Квартира без отделки, под ремонт, что даёт возможность новым владельцам реализовать свои дизайнерские идеи.Квартира идеально подходит для семей с детьми благодаря удобному расположению: лёгкий доступ к общественному транспорту, близость к образовательным учреждениям и социальным объектам. До метро Щелковская 30 мин общественным транспортом. Один собственник, свободная продажа, торг. Мы гарантируем безопасную сделку и юридическую поддержку нашим клиентам.

Квартира на карте

ПанорамыКарта

Похожие объявления

Этаж: 4  Площадь: 54,9 м2

7 200 000 Р
Спецпредложения
Добавить объявление